6211 Electric Strike Template
6211 Electric Strike Template - Electrified strikes allow remote release of a locked door by activating a movable lip (keeper) using an entry/exit button or credential reader and can be a cost effective means for managing. For dual switch (ds) option, 6 lead wires. For use on new installations with mortise locks without deadbolt or cylindrical locks on single door, hollow metal frame applications. Electric strike, single door wood frame mortise or cylindrical application. Deadbolt will not function with this strike. View and download von duprin 6211wf installation instructions online. 6211 electric strike mortise/cylinder single door application.
6200 series electric strikes are designed for use with a variety of mortise or cylindrical locksets, as well as mortise exit devices. 6211 wf electric strike wood frame application. Designed to replace von duprin 3140 or. No deadbolt action available for mortise applications.
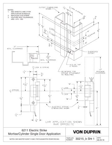
6211 locks pdf manual download. Electric strike, single door wood frame mortise or cylindrical application. See sheets 2 and 3 for application schedule. Single door mortise or cylindrical application. See master sheet #10001 for suggested reinforcing. It interfaces with the latch mechanism of the exit device.
Von Duprin 6211 Electric Strike for Mortise or Cylindrical Locks (D6
This von duprin 6211 electric strike is specifically designed for use on hollow metal frame applications with mortise or cylindrical locks on single doors. For lock or device preparation, see. Electric strike for single door mortise or cylindrical application. Designed to replace von duprin 3140 or. To assure the proper selection of an electric strike on new applications, lockset compatibility charts are shown on.
Electric strike, single door wood frame mortise or cylindrical application. 6211 wf electric strike wood frame application. Check with factory for retrofit applications. Designed to replace folger adam 732.
For Lock Or Device Preparation, See.
To assure the proper selection of an electric strike on new applications, lockset compatibility charts are shown on. Electric strike, single door wood frame mortise or cylindrical application. Electrified strikes allow remote release of a locked door by activating a movable lip (keeper) using an entry/exit button or credential reader and can be a cost effective means for managing. Deadbolt will not function with this strike.
Electric Strike For Single Door Mortise Or Cylindrical Application.
View and download von duprin 6211 installation instructions online. 6211 wf electric strike wood frame application. Designed to replace folger adam 732. 6211 electric strike mortise/cylinder single door application.
Deadbolt Will Not Function With This Strike.
6211 wf electric strike wood frame application. 6211 locks pdf manual download. See master sheet #10001 for suggested reinforcing. See master sheet #10001 for suggested reinforcing.
Signal Tripper Function With 3/8 Throw Bolts Is Not Recommended.
Deadbolt will not function with this strike. An electric strike is used to. See master sheet #10001 for suggested reinforcing. See master sheet #10001 for suggested reinforcing.
Deadbolt will not function with this strike. Electrified strikes allow remote release of a locked door by activating a movable lip (keeper) using an entry/exit button or credential reader and can be a cost effective means for managing. An electric strike is used to. See master sheet #10001 for suggested reinforcing. 6211 wf electric strike wood frame application.